2017/10/04
ホームインスペクションで測定した壁・床の傾斜計測値を、弊社の様に図面に落として、壁・床の傾斜傾向を見るホームインスペクターは、日本中で果たして何人いるだろうか?
沢山いた方が買主様にとっては良い事ですね!
今回は、下記の傾斜図を作成する事で、中古住宅には多かれ少なかれ、どちらかに傾斜している事がお伝え出来たらと思いこの記事を書きます。
◆物件情報
・築24年の軽量鉄骨の住宅(大手ハウスメーカー)
・基礎は、布基礎
・床下構造は、束石の上に鋼製束、大引・根太は木材
・床下は、防水シートの上に砂敷
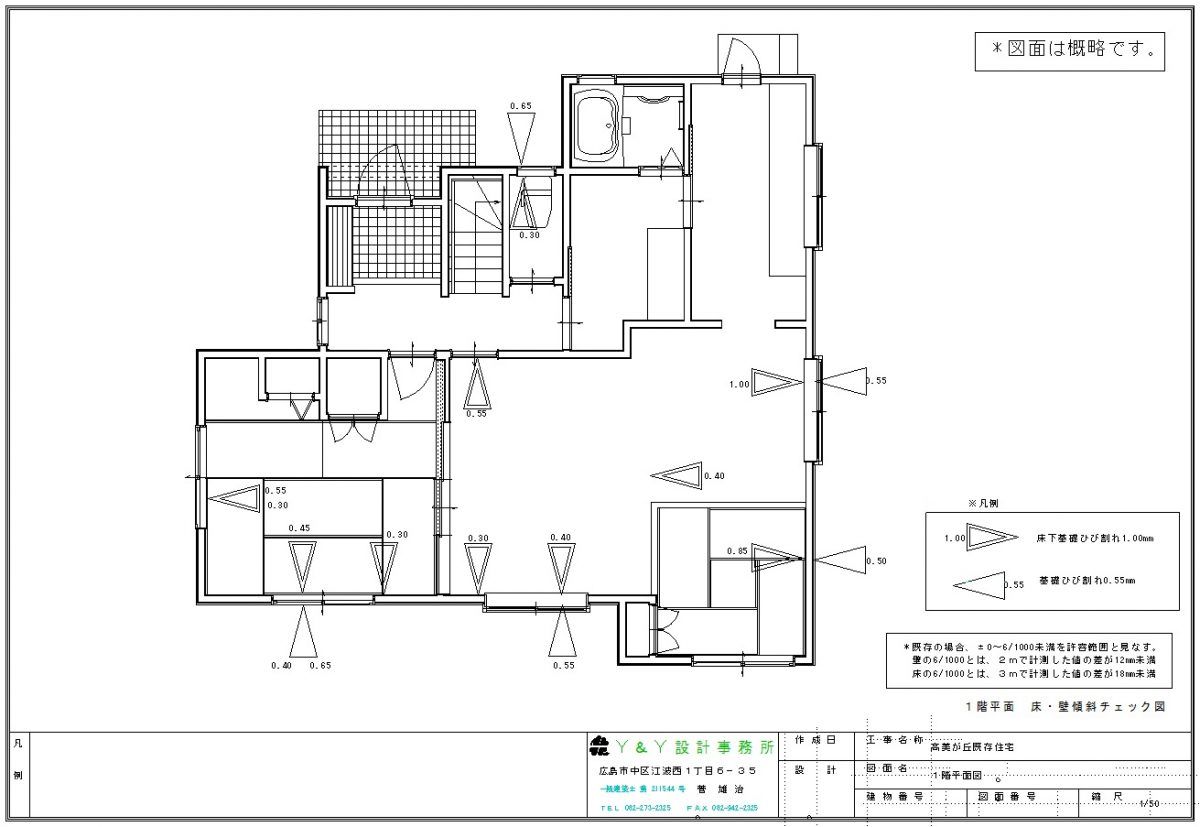
◆壁の傾斜
傾斜数値が4/1000以上の所を丸で囲っている箇所だけを見ても、1階、2階とも東側、南側に傾斜している事が分かります。
この傾斜の傾向は、床の傾斜と同調している事が、下記の床の傾斜計測図面でも分かると思います。
◆床の傾斜
この1階、2階床の計測図から、東側と南側に建物全体が傾斜している事が分かります。
(参考としてデジタル水平器で1階の和室6帖及びタタミコーナー部分の南側掃出しサッシ敷居を計測した数値は、4/1000東側に傾斜しています。)
図面には数値を記入していない箇所で、居間中央730(参考値)から右下の748の傾斜は、7.08/1000の傾斜になる箇所も有ります。(測定間距離が2.54mでしたので記入していません。)
◆基礎のひび割れ
基礎に発生しているひび割れの場所からも読み取れる様に、南東方向に基礎が不同沈下していると判断できます。
(最大ひび割れ幅1.00mm)
◆私見として
今回の軽量鉄骨造の場合は、木造住宅(柱と梁が互いに抗って1階と2階の柱の傾斜が逆になったりする場合が有る)と違い、床と壁との90度の角度を保ったまま(分かり易く説明する為に大袈裟に書いています)、基礎が不同沈下している傾斜方向にそのまま壁の傾斜も床の傾斜も同調して傾いている典型的な事象(不同沈下)と考えられます。
◆問題として
この不同沈下の許容範囲が分からない事です。何か分かり易い文献などが有れば良いのですが。
◆不同沈下の原因として
建物の近くに法面などは無く、また造成時に盛土をする様な地域で無い事から考えると、当時は既に地盤調査はしていたと考えられるので、基礎施工時の不具合(転圧不足又は、根切りを誤って掘りすぎて埋め戻しをしたなど)と思われます。
建物の近くに法面が無い場合で、ある面にひび割れが集中している場合は不同沈下が有る可能性が高いようです。
ご質問等がございましたら、画面の上下に有る「メールでのお問合せ」でお願いします。
では、今回はここ迄とします。
■広島県・山口県・岡山県でホームインスペクション(住宅診断)を依頼するなら、ホームインスペクション(中古住宅瑕疵保険検査を含む)に対する考え方、診断実例をブログに記載している<<Y&Y住宅検査>>にお任せ下さい!











