2026/03/02
今回は
Y&Y設計事務所は
住宅診断で幸せな暮らしを応援します!
住宅を建てる又は購入する前に
是非、一読下さい!
今回は、<耐力面材は真壁仕様で施工をお勧めします!>についてお話をします。
今日のお話は
少し専門的なお話で耐力壁の強さについてのお話です。
たまたまユーチューブで
耐震に強いと言われる「コーチパネル」に目が止まりました。
因みに
耐力壁の種類は大きく分けて
「筋かい」と「耐力面材」が有ります。
「筋かい」や「耐力面材」については
改めて説明する事も無いので説明はしません。
下記写真①は
「コーチパネル」のユーチューブで
耐力壁の強さを実験している映像をアップしていました。
上記写真①を見ると
圧倒的に
「コーチパネル」が横揺れに対して強い事が分かります。
私見で理由を解釈すると
下記写真②の様に
柱・梁間に枠材に耐力面材を打付けたパネルを
嵌め込んでいる構造が「コーチパネル」です。
これを見た感想として
何故「コーチパネル」が
壁倍率が高いのか?の理由は
柱・梁間に
耐力面材を打付けたフレームを入れ込む事で
横揺れに対しての強度が出ていると感じました。
これが
「コーチパネル」の正体だと考えたのです。
上記写真①を見て
大壁直貼りが何故弱いのか?
その理由は
横揺れによって耐力面材を留めている釘部分が
破壊してしまったからです。
その短所を補ったのが
枠材に耐力面材を釘で打付けたフレームを
耐力面材自体も
枠材と一緒に柱・梁間に入り込む為
面材を留めている釘部分が
破壊し難い為と考えました。
この違いが
上記写真①の様に
大壁直貼りとコーチパネルの強度の差が
出たのではないかと思います。
つまり工法的には
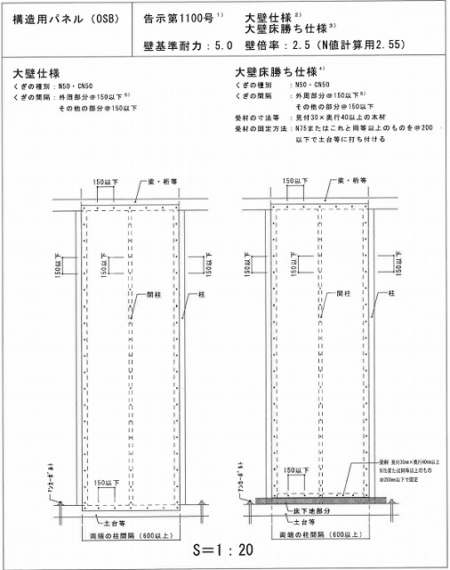
下記資料①の
下側の真壁仕様と同じ考え方ですね!
上記資料①を見ると
壁倍率(強さ)は
大壁仕様と真壁仕様では同じになっています。
上記資料①は
建築基準法の告示第1100で記載されていますので
公な資料になりますが何故???・・・・・
今日の纏めとして
私的には
上記写真①の大壁直貼りが上記資料①の大壁仕様で
上記写真①のコーチパネルが上記資料①の真壁仕様と
考えがダブります。
なので
上記資料①の
告示第1100の様に
大壁仕様と真壁仕様の強度が同じであれば
真壁仕様にする事をお勧めします。
ただし
大工の手間と材料費が余分にかかりますね!
という事で
今日のお話は
参考になりましたでしょうか?
昨日のウォーキング&ジョギング
距離は11.7km 歩数は15,590歩
トータル903日目(休んだ118日含む)
総距離7,805.6km
総歩数10,186,299歩
このブログ内容に聞きたい事が有れば
下記メール又は携帯電話へ連絡を下さいね!
メール:info@yandykensa.com
携帯電話:090-1183-5008
今回は、これで終わります。
※ご意見、ご感想がある場合はこちらからお願いします。
Y&Y設計事務所は
「住宅診断」を実施して
沢山の不具合事象を見ていますので
これらの
不具合事象を少しでも減少させる為に
売主側の「建物状況調査報告書」に対しては
「セカンドオピニオン」は必須!
既存住宅の場合は
「住宅診断」は必須ですよ!
注文住宅の場合は
「新築各工程検査」や
「プラン思い込み図面チェック」を
費用対効果の事も考えて依頼してみませんか?
依頼する事で
家族全員の幸せな暮らしを実現させませんか?
勿論
設計事務所として
住宅の設計相談もOKですよ!
毎日ブログを更新していますので
住宅の購入を考えている人は
他のブログも見て下さいね!









