2026/01/02
今回は
Y&Y設計事務所は
住宅診断で幸せな暮らしを応援します!
住宅を建てる又は購入する前に
是非、一読下さい!
今回は、<室内に物干しスペースを確保しましょう!>についてお話をします。
今日のお話は
ドライルーム及び室内用物干しの件を
具体的にお話をします。
注文住宅を考えている方で
ドライルームが無い場合は
洗濯物干し用に
天井下地だけでも施工依頼をされる事を
お勧めします。
当社の
住宅プランで必須アイテムとして
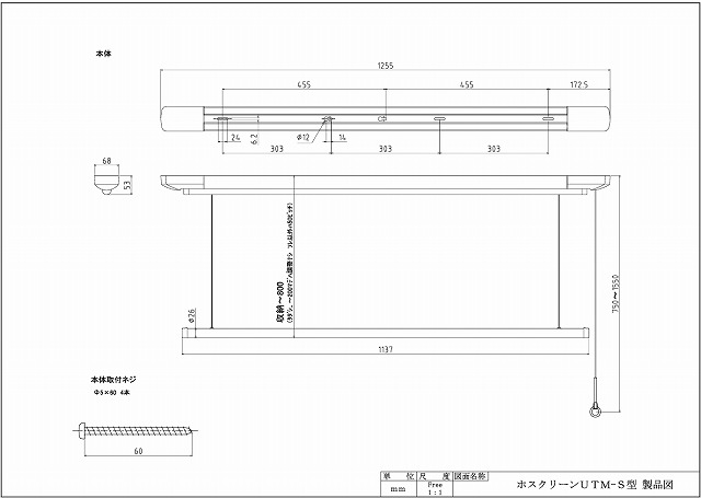
下記資料①の
㈱川口技研
昇降式室内用物干し「ホスクリーン」を
考えています。
上記資料①の商品は
洗濯物を干さない時は物干し竿が
天井面に設置した本体に納まる商品で
1セットのホスクリーンで
約8㎏までの洗濯物を干す事が出来ます。
下記資料①が
商品の大きさが分かる資料です。
下記図面①では
洗濯物を入れる収納を含めて
4帖のドライルームのプランで
ホスクリーンを4本設置したプランですが
ドライルームの場合は
天井面に収納しない商品でも構わないですね!
上記図面①は
洗面脱衣室に
ガス衣類乾燥機(乾太くん)を
設置しているプランで
ガス衣類乾燥機(乾太くん)を
設置しないプランでも
天候に関係無く
4人家族の洗濯物が
干せるスペースだと思います。
ドライルームが
プランに組み込めなかった場合は
洗面脱衣室に1セットを設置し
その他には2階の廊下を含む階段室に
2セットくらいは設置出来ると思いますので
事前に
ホスクリーンが設置できる様に
天井下地を入れておく事をお勧めします。
今日の纏めとして
今から注文住宅を計画される
お子様がいるご夫婦の場合や
共働きのご夫婦の場合も必ず
外の天候に関係無く
洗濯をしなくてはなりません。
なので
安心して洗濯物が干せるスペースは
プランの段階で考えておきましょう!
既に工事中の方で
まだ間に合う工事工程であれば
物干し器具が設置できる様に
下地補強などの準備は
しておいた方が良いと思いますよ。
という事で
今日のお話は
参考になりましたでしょうか?
昨日のウォーキング&ジョギング
お休みしました。
距離は0.0km 歩数は0,000歩
トータル843日目(休んだ111日間含む)
総距離7,270.1km
総歩数9,501,778歩
このブログ内容に聞きたい事が有れば
下記メール又は携帯電話へ連絡を下さいね!
メール:info@yandykensa.com
携帯電話:090-1183-5008
今回は、これで終わります。
※ご意見、ご感想がある場合はこちらからお願いします。
Y&Y設計事務所は
「住宅診断」を実施して
沢山の不具合事象を見ていますので
これらの
不具合事象を少しでも減少させる為に
売主側の「建物状況調査報告書」に対しては
「セカンドオピニオン」は必須!
既存住宅の場合は
「住宅診断」は必須ですよ!
注文住宅の場合は
「新築各工程検査」や
「プラン思い込み図面チェック」を
費用対効果の事も考えて依頼してみませんか?
依頼する事で
家族全員の幸せな暮らしを実現させませんか?
勿論
設計事務所として
住宅の設計相談もOKですよ!
毎日ブログを更新していますので
住宅の購入を考えている人は
他のブログも見て下さいね!








