2026/02/08
今回は
Y&Y設計事務所は
住宅診断で幸せな暮らしを応援します!
住宅を建てる又は購入する前に
是非、一読下さい!
今回は、<傾斜基準が有っても何故不同沈下基準が無い?>についてお話をします。
今日のお話は
既存住宅瑕疵保険が付保された建物は
本当に問題無いのか?というお話です。
そもそも
住宅の床傾斜の判断基準は
色々と基準は有りますが
一致しているのは
6/1000以上の傾斜が
判断基準になっています。
尚且つ
計測距離をおおよそ3mという
基準も有ります。
この6/1000の傾斜とは
1mで6㎜の傾斜の事です。
実際に定規などで
1mと6㎜の傾斜を作ってみて下さい。
この傾斜のイメージが
ハッキリと分かります。
2mでは12㎜
3mでは18㎜
しかし
既存住宅瑕疵保険の検査基準は
6/1000以上の傾斜が無ければ
床の傾斜に関して問題無しとして
既存住宅瑕疵保険が付保されます。
一般のエンドユーザーの方は
既存住宅瑕疵保険が付保される建物は
安全な建物だと勘違いされて
購入される方が殆どですね!
勿論
色んな規定が有って
数値的な判断基準の
出どころはハッキリしません。
しかし
何らかの数値を作らなければ
判断のしようがないので仕方が無いのですが
既存住宅の住宅診断を実施していて
この6/1000以上という数値が
何か腑に落ちないのです。
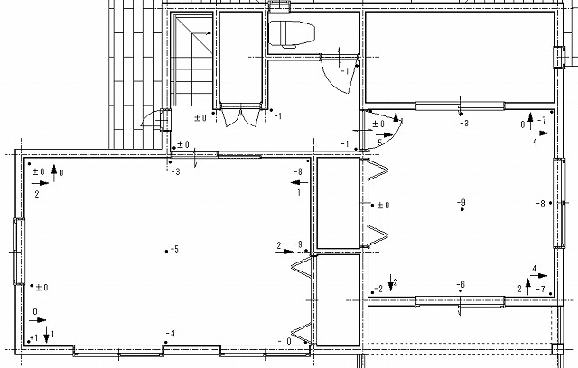
下記1階図面①は
1階の床傾斜計測を実施した
傾斜図面です。
単純に平面上に記載している
数値を観れば
±0㎜と比較して
ー7㎜の数値が有ります。
計測間距離が約6.5mなので
≒1.08/1000の傾斜になります。
つまり
既存住宅瑕疵保険の規準で言えば
全然問題無しの傾斜になります。
しかし
よく考えてみて下さい。
新築時の床の傾斜は
床の高さで言えば1㎜前後の高低差しか有りません。
それが7㎜になっているのですよ!
まぁ
この場合はLDKが広いので
そんなに気にされる方は
いないのかな?
それでは
下記2階図面②を見て下さい。
下記2階図面②の
右側の4畳半の床の傾斜を見て下さい。
入り口の所に±0㎜が有って
右側の角にー7㎜の高低差が有ります。
計測間距離は3.4mなので
≒2.05/1000の傾斜になります。
しかしこの傾斜も
既存住宅瑕疵保険の規準で言えば
6/1000以下なので全然問題無しです。
壁の傾斜もついでに見ますと
5/1000や4/1000の傾斜が
しかも同じ方向に傾いています。
壁の規準も6/1000以上なので
5/1000が有っても問題無く
既存住宅瑕疵保険が付保されます。
このブログを見ている方は
この6/1000以上の数値基準を
どの様に思われますか?
今日の纏めとして
既存住宅瑕疵保険の検査項目に
不同沈下の項目が有りません。
これが無い事は
凄く不思議でたまりません。
傾斜の基準数値が有るのに
何故不同沈下の項目と
沈下の判断基準が無いのでしょうか?
上記図面の建物は明らかに
右側に不同沈下しています。
この建物は
本当に問題が無い安全な建物でしょうか?
既存住宅瑕疵保険の仕組みは
私見として
住宅業界の闇だと考えます!
最後に
既存住宅を購入される前に
床・壁の詳細傾斜計測を実施しませんか?
その傾斜チェック図から
その建物の傾斜傾向が分かり
もしかすると
不同沈下の原因まで判明するかも!
という事で
今日のお話は
参考になりましたでしょうか?
昨日のウォーキング&ジョギング
距離は10.5km 歩数は13,623歩
トータル881日目(休んだ114日含む)
総距離7,610.2km
総歩数9,937,128歩
このブログ内容に聞きたい事が有れば
下記メール又は携帯電話へ連絡を下さいね!
メール:info@yandykensa.com
携帯電話:090-1183-5008
今回は、これで終わります。
※ご意見、ご感想がある場合はこちらからお願いします。
Y&Y設計事務所は
「住宅診断」を実施して
沢山の不具合事象を見ていますので
これらの
不具合事象を少しでも減少させる為に
売主側の「建物状況調査報告書」に対しては
「セカンドオピニオン」は必須!
既存住宅の場合は
「住宅診断」は必須ですよ!
注文住宅の場合は
「新築各工程検査」や
「プラン思い込み図面チェック」を
費用対効果の事も考えて依頼してみませんか?
依頼する事で
家族全員の幸せな暮らしを実現させませんか?
勿論
設計事務所として
住宅の設計相談もOKですよ!
毎日ブログを更新していますので
住宅の購入を考えている人は
他のブログも見て下さいね!







